In my previous post, Proskynetarion Project – Part 1, I discussed the background of this project. Since that time I have completed the design drawings.
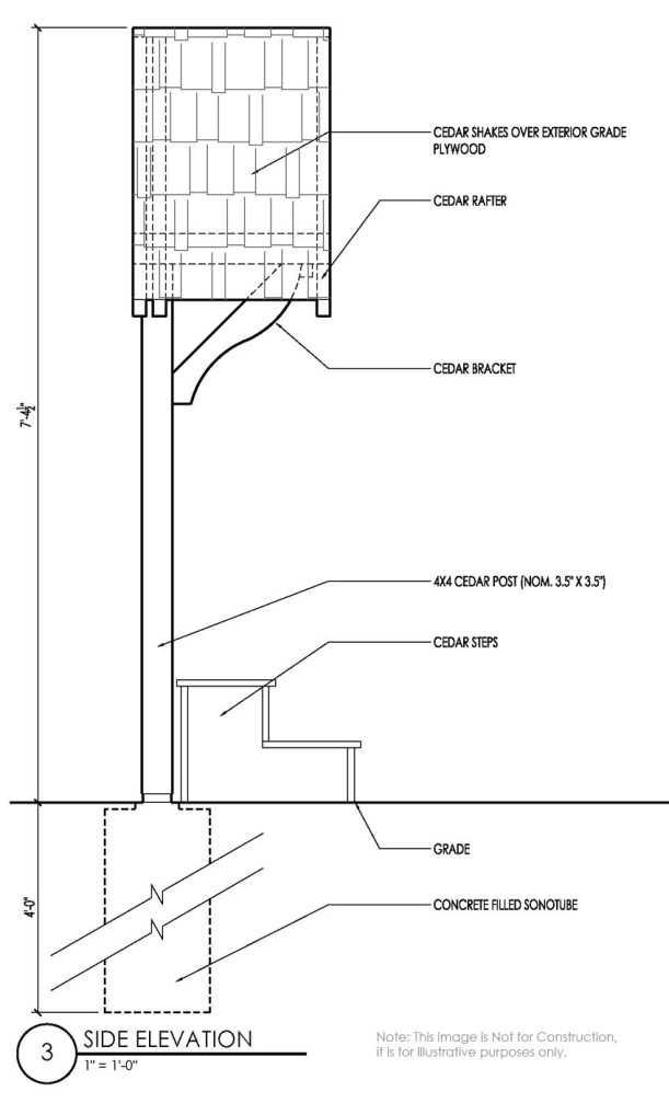
The shrine will be constructed entirely from Western Red Cedar. Its form is simple, two 4×4 posts supporting a 12/12 Cedar shake roof. The roof sits upon two projecting beams supported by Cedar brackets. The elevation of the bearing point of the rafters, is set by a 3:5 proportion of the width of the shire. The bottom horizontal support dimension down from the rafter bearing is a 1:1 proportion to the width of the shrine.
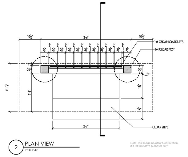
In plan view you can see the roof projection is not very deep, just enough to provide some protection for the icon from the elements.
The side elevation shows the movable steps that will be located for the smaller children’s use in venerating the shrine.
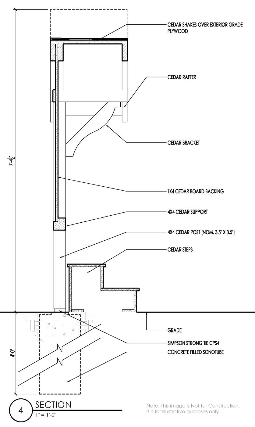
The section doesn’t provide much additional information, but no matter the project I feel it provides the extra step of thinking it through. Architectural drawing is an exploratory process as well as an illustrative.
I think the design has turned out well, and I look forward to its construction in the coming weeks. I plan to take photographs throughout its construction for a later post.
If anyone has any questions or comment please drop a note in the comments below.








